- Главная
- Проекты
- Деревянные дома
- Дом «Отдых-2»
Дом «Отдых-2»
| Общая площадь: | 122 м2 |
| Жилая площадь: | 59 м2 |
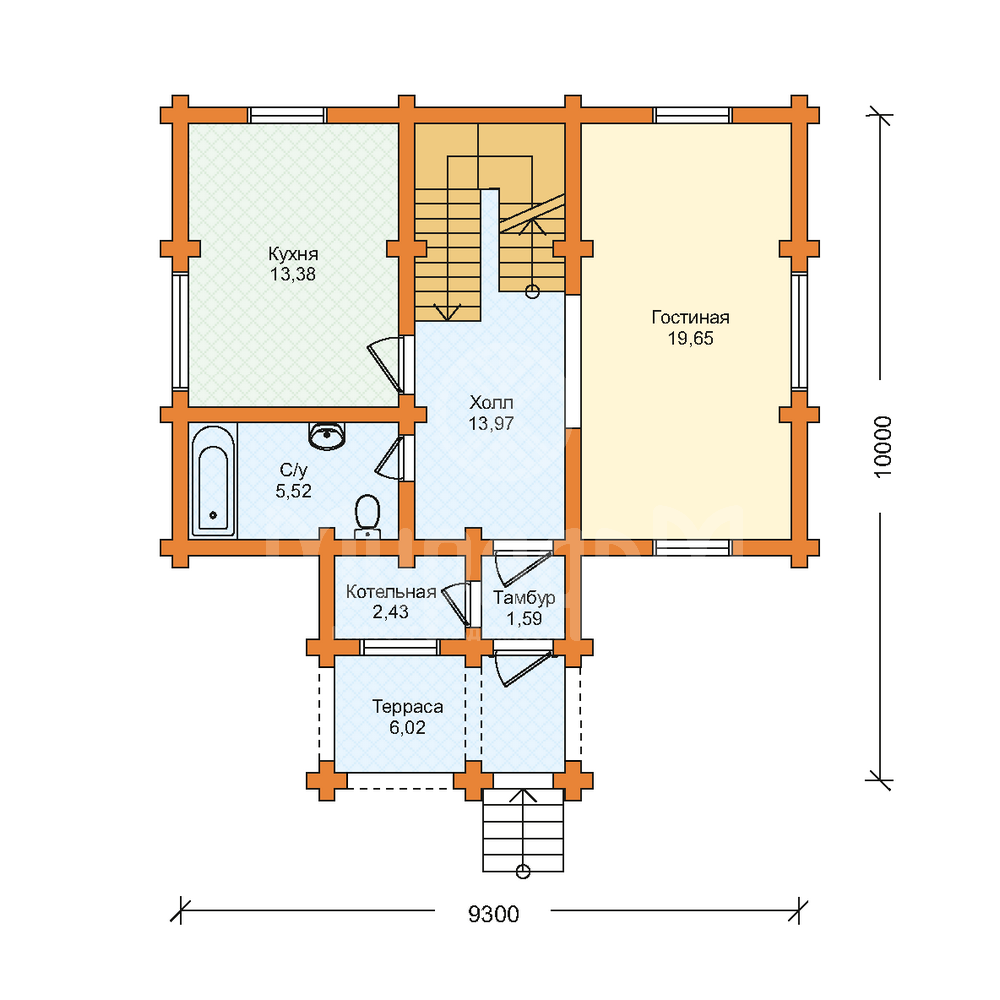
| Габариты по осям: | 10 х 9,3 м. |
| Этажность: | одноэтажный с мансардным этажом |
| Материал: | Оцилиндрованное бревно |
| Общая площадь: | 122 м2 |
| Жилая площадь: | 59 м2 |
| Габариты по осям: | 10 х 9,3 м. |
| Этажность: | одноэтажный с мансардным этажом |
| Материал: | Оцилиндрованное бревно |
Заполните форму и мы мгновенно отправим Вам на почту PDF файл с подробным расчетом.
(Скачать пример .pdf)
(Скачать пример .pdf)
Сообщение
Мгновенно получить PDF расчет по вашим параметрам на почту
Запрос успешно отправлен!
Коммерческое предложение
...
Извините, раздел в разработке.
Любой проект, который опубликован на нашем сайте или в каталоге, можно увеличить или уменьшить, а также изменить планировку. Возможно изменить материал стен их диаметр или сечение. Изменение параметров проекта приведет к изменению его стоимости.
Поделитесь проектом в соц. сетях
Фасады
Планировки
Фото
Ещё фото
Описание
Дом для небольшой семьи, с двумя спальнями. Проект был разработан путем улучшения и увеличения полезной площади на мансардном этаже: предусмотрено небольшое помещение, которое можно использовать под гардероб или кладовую.
Показать полностью
Цена
Стоимость бревна:
1 422 773 i Что входит в стоимость
1 422 773 i Что входит в стоимость
Стоимость бревна:
1 593 506 i Что входит в стоимость
1 593 506 i Что входит в стоимость
Стоимость бревна:
1 827 524 i Что входит в стоимость
1 827 524 i Что входит в стоимость
Стоимость бревна:
2 030 582 i Что входит в стоимость
2 030 582 i Что входит в стоимость
Стоимость бревна:
2 233 640 i Что входит в стоимость
2 233 640 i Что входит в стоимость
Стоимость бревна:
2 575 319 i Что входит в стоимость
2 575 319 i Что входит в стоимость
Стоимость бревна:
2 726 808 i Что входит в стоимость
2 726 808 i Что входит в стоимость
Стоимость бруса:
2 758 435 i Что входит в стоимость
2 758 435 i Что входит в стоимость
Стоимость бруса:
3 146 340 i Что входит в стоимость
3 146 340 i Что входит в стоимость
Стоимость бруса:
3 802 561 i Что входит в стоимость
3 802 561 i Что входит в стоимость
Стоимость бруса:
3 879 050 i Что входит в стоимость
3 879 050 i Что входит в стоимость
Стоимость бруса:
3 889 976 i Что входит в стоимость
3 889 976 i Что входит в стоимость
Стоимость бруса:
4 633 006 i Что входит в стоимость
4 633 006 i Что входит в стоимость
Стоимость бруса:
4 697 960 i Что входит в стоимость
4 697 960 i Что входит в стоимость
Стоимость бруса:
4 720 421 i Что входит в стоимость
4 720 421 i Что входит в стоимость
Стоимость бруса:
0 i Что входит в стоимость
0 i Что входит в стоимость
Стоимость бруса:
0 i Что входит в стоимость
0 i Что входит в стоимость
Стоимость бруса:
0 i Что входит в стоимость
0 i Что входит в стоимость
Стоимость бруса:
0 i Что входит в стоимость
0 i Что входит в стоимость
Любой проект, который опубликован на нашем сайте или в каталоге, можно увеличить или уменьшить, а также изменить планировку. Возможно изменить материал стен их диаметр или сечение. Изменение параметров проекта приведет к изменению его стоимости.
Поделитесь проектом в соц. сетях
Получить расчет
Запрос на стоимость успешно отправлен!
Сообщение успешно отправлено!
Загрузить эскиз на расчет
Загрузите свой проект или эскиз на расчет предварительной стоимости строительства. Это может быть ссылка с другого сайта или Ваш собственный чертеж с планировкой и желаемыми размерами.
В среднем расчет занимает
1-2 р. дней.
По готовности наш специалист свяжется с Вами.
Услуга бесплатная.
Заявка успешно отправлена!
Оставьте данные для покупки
Заявка успешно отправлена!

















